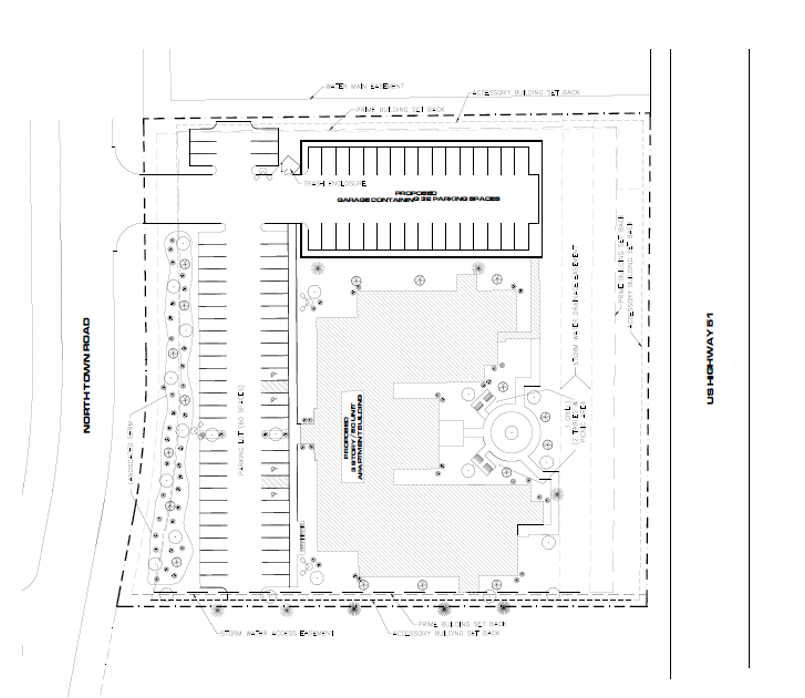
Address: 6561 North Towne Road
Project Name: Alice Place
Developer: JNB DeForest Senior, LP
Description: 50-Unit Affordable Rental Housing for Senior 55+
Type: Senior Housing
Engage with DeForest!
Address: 6561 North Towne Road
Project Name: Alice Place
Developer: JNB DeForest Senior, LP
Description: 50-Unit Affordable Rental Housing for Senior 55+
Type: Senior Housing
Village Hall: 120 S. Stevenson Street, DeForest, WI 53532
Phone: (608) 846-6751, Dane County
Monday-Thursday 7:30 AM – 4:30 PM and Friday 7:30 AM – 2:00 PM
This site is owned and operated by Deforest, Wi using software licensed from Social Pinpoint. We take appropriate measures to safeguard personal information and use encryption, access controls, and other security measures to protect it. For details on what personal information we may collect and access, please refer to Social Pinpoint's Privacy Policy.
Users have the right to access, correct, or delete their personal information, subject to certain exceptions. For details on how to exercise these rights, or for any questions or concerns about our privacy practices, please contact us in writing at harmons@vi.deforest.wi.us.
This privacy policy may change from time to time, and any changes will be communicated to users through the site.
The following Terms and Conditions govern the use of Village of Deforest (“the site”). The software platform is owned by Social Pinpoint Pty Ltd (SPP) and operated by us, Deforest, Wi.
By accessing and using this site, you are choosing to accept and comply with the Terms presented throughout this agreement as well as the Privacy Policy and Moderation Policy. These Terms apply to all visitors and users of this site. Linked sites, affiliated services or third party content or software have their own Terms that you must comply with. If you disagree with any of the Terms presented in this agreement, you may discontinue using the site immediately.
If you are under 18 years old, please ensure that your parent or guardian understands and accepts these Terms and Conditions (including the Privacy Policy and Moderation Policy).
What are the conditions with a user’s account?
While using the site, you must not violate any applicable laws and regulations. It is our duty to protect the confidentiality of content you provide on our site in accordance with our Privacy Policy. When you create an account with us, you must always provide us with accurate information. Failure to provide accurate information violates the Terms, which may result in immediate termination of your account on our service. You are responsible for protecting your own password you use for this site and for any activities done under that password. Unauthorised use of your password or account must be immediately reported to us. In some cases, we or our agents may require access to your user accounts to respond to technical issues.
We are not responsible for the content on the site that has been provided by the users of the site. Any content posted by you is subject to the rules of our Moderation Policy. Your contribution to the site may be edited, removed or not published if we consider it inappropriate (refer to Moderation Policy). Contributors should also be aware that their posts may remain online indefinitely. Where practical, you may choose not to identify yourself, deal with us on an anonymous basis or use a pseudonym.
What do we require from our users?
You must understand and agree that, without limitation:
Can your account be suspended or terminated?
We may terminate or suspend access to your site and/or account immediately, without prior notice, including without limitation if you breach the Terms. We may immediately deactivate or delete your account and all the related files and information in your account. After your account has been terminated, the content you have posted may also remain indefinitely on the site.
If you want to terminate your own account, please send an email to harmons@vi.deforest.wi.us.
Governing Law
These Terms shall be governed in accordance with the laws of the State of Delaware, the United States of America and Queensland, Australia, without regard to its conflict of law provisions.
Indemnification
Deforest, Wi, its subsidiaries, affiliates, officers, agents, licensors and other partners are not responsible for any loss, liability, claim, or demand, including legal fees, made by any third party due to or arising from a breach of this agreement and/or any breach of your representations and warranties set forth above.
What content do we own?
This website contains the copyrighted material, trademarks, patents, trade secrets and other proprietary information (“Intellectual Property”) of Deforest, Wi and its suppliers and licensors. Deforest, Wi owns and retains all proprietary rights in the intellectual property. All intellectual property in the content of this site including without limitation to text, software, source code, pages, documents and online graphics, photographs, sounds, audio, video and other interactive features are owned by or licensed to us.
Any original content that you submit or post on our site may be made available to the public and allows users to share your content (with the end user acknowledging your contribution) under the Creative Commons Attribution-ShareAlike 4.0 License.
Except for Intellectual Property which is in the public domain or for which you have been given written permission, you may not copy, alter, transmit, sell, distribute any of the Intellectual Property on this site.
We are not responsible for your communications or dealings, including payment and delivery of goods or services, with a third party found via our website. Any loss or damage incurred from those communications or dealings are solely between the user and the third party.
Disclaimer and Warranties
Users must agree that you use of the site is at your own risk. We make no warranty that the site will meet your requirements or be uninterrupted or error-free. Any material that the user downloads through the site is done at their own risk and are responsible for any damages to their computer system or loss of data.
What happens if these Terms change?
We reserve the right, at our sole discretion, to modify or replace these Terms at any time without notice. The most recent version of the Terms can be seen on this page. By continuing to access or use our site after those revisions become effective, you agree and will comply to the revised terms. If you do not agree to the revised terms, please discontinue using our site.
Contact Us
If you have any questions about these Terms, please contact us at harmons@vi.deforest.wi.us.
Enter your email address below. We will send you instructions to reset your password.
Back to Log in
Creating an account helps us better understand your needs and the needs of the community.
Already have an account? Log in now
Thank you, your account has been created.
Completing the questions below helps us better understand the diverse range of people who contribute their ideas. The questions are optional.
You’re using an outdated browser.
Some features of this website may not work correctly. To get a better experience we strongly recommend you download a new browser for free:
Would you like to follow this project to receive email updates?